1738 N Brookfield Street
South Bend,
IN
46628-3219
1738 N Brookfield Street
South Bend,
IN
46628-3219
3 Beds
1 Baths
2160 Sqft.
0.14 Acre Lot
$119,900
Interested? Contact One of Our Agents!
HOME DETAILS | 1738 Brookfield
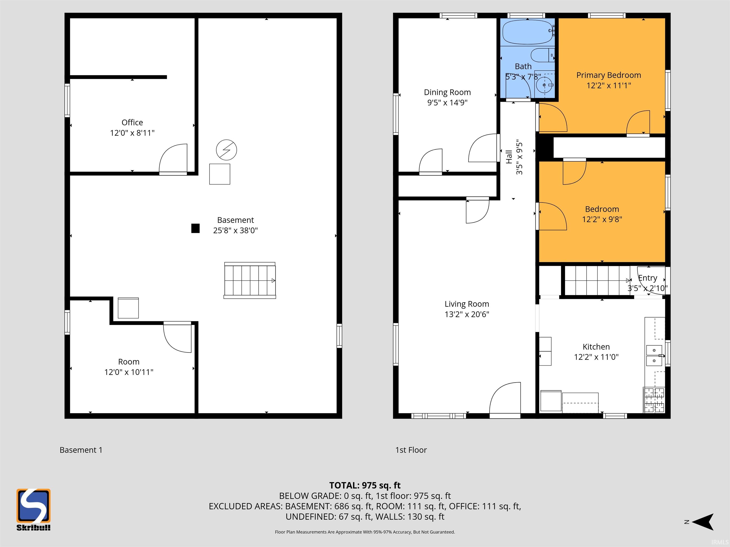
This move-in-ready home sits on a quiet, low-traffic street in a desirable neighborhood, conveniently close to Holy Cross School and Muessel Elementary. Inside, you’ll find a spacious living room, three generously sized bedrooms, and an updated full bath. The kitchen has been refreshed as well and includes all appliances. A full, dry basement provides abundant storage or potential for additional living space. The large, fenced-in backyard is perfect for children and pets to play safely and includes a handy storage shed.
| Listing Office |
Cressy & Everett- Elkhart
|
|---|---|
| Listing Agent | Dennis Bamber |
| MLS Number |
#202547410
|
| Listing Status |
Pending
|
General Info
Overview
Style
One Story
Year Built
1957
Lot Dimensions
41X143
Square Footage
2160 sqft.
# Total Rooms
8
Bedrooms
Total # Bedrooms
3
Master Bedroom Level
Main
2nd Bedroom Level
Main
3rd Bedroom Level
Main
Bathrooms
Full Baths
1
Total Baths
1
Other Rooms
Living/Great Room Dimensions: 20 x 13
Living/Great Rm Level
Main
Kitchen Dimensions: 12 x 11
Kitchen Level
Main
Laundry Level
Lower
Utilities
Water Utility
City
Sewer
Public
Additional Info
Calculate Your Monthly Payment
Simply fill out the information below and find out what your approximate monthly payment would be.
Monthly Payment |
$ |
|---|---|
| Loan | $ |
| Taxes | $ |
| Insurance | $ |
School Info
Elementary School
Darden Primary Center
Middle School
Dickinson
High School
Washington
Public Schools Nearby
| Name | Grades | Rating | Distance |
|---|
Private Schools Nearby
| Name | Grades | Rating | Distance |
|---|
Location
1738 N Brookfield Street
South Bend,
IN
46628-3219
Directions
Between Keller and Marquette
IDX information is provided exclusively for consumers’ personal, non-commercial use and may not be used for any purpose other than to identify prospective properties consumers may be interested in purchasing. Data is deemed reliable but is not guaranteed accurate by the MLS. IDX information provided by the Indiana Regional MLS.
