1503 Rockne Drive
South Bend,
IN
46617
1503 Rockne Drive
South Bend,
IN
46617
4 Beds
2 Baths
2298 Sqft.
0.18 Acre Lot
$189,000
Interested? Contact One of Our Agents!
HOME DETAILS | 1503 Rockne
What a fantastic investment opportunity! Whether its an AirBnB, Long-Term Rental; or a student or family looking to bring this home back to life, it will be a winner! A perfect candidate for an owner-occupant utilizing a FHA 203(k) loan, which allows you to bundle the purchase and renovation costs into one loan. Ask for more details. This 4 bedroom and 1 ½ bath home sits on a large corner lot and is within walking distance to the University of Notre Dame and Trader Joe’s. Enjoy beautiful hardwood floors throughout, a newly renovated main-level full bathroom, a full basement for extra storage or future finishing potential. Major updates include a 3 year old roof and water heater. With just a bit of interior TLC, this property could shine as a wonderful primary residence or an excellent experience for guests and tenants alike near campus. Don’t miss your chance to own in this highly desirable location!
| Listing Office |
Berkshire Hathaway HomeServices Northern Indiana Real Estate
|
|---|---|
| Listing Agent | Jerry Wolf |
| MLS Number |
#202544089
|
| Listing Status |
Pending
|
General Info
Overview
Style
One and Half Story
Year Built
1947
Lot Dimensions
61 x 130
Square Footage
2298 sqft.
# Total Rooms
7
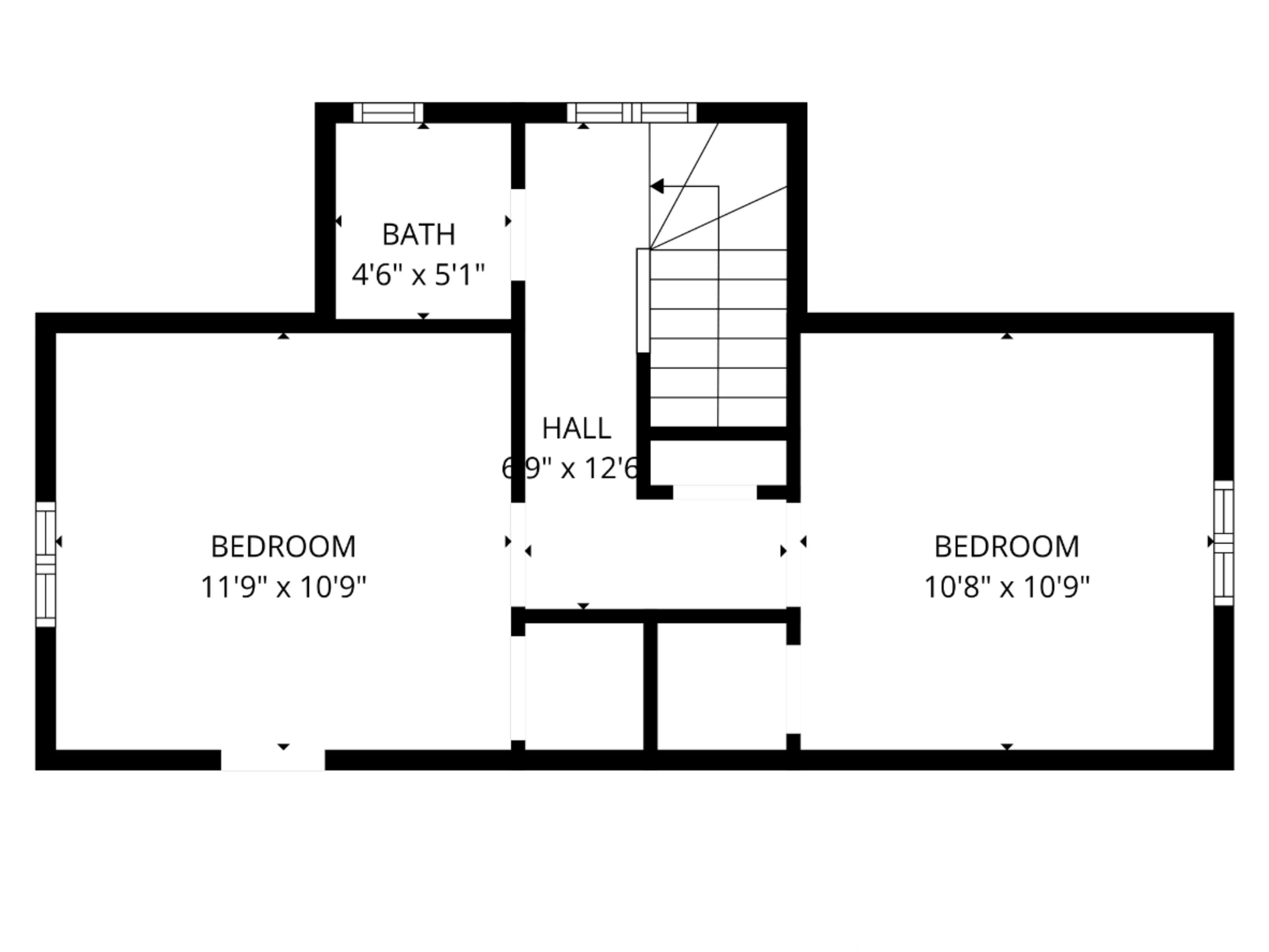
Bedrooms
Total # Bedrooms
4
Master Bedroom Level
Main
2nd Bedroom Level
Main
3rd Bedroom Level
Upper
4th Bedroom Level
Upper
Bathrooms
Full Baths
1
Half Baths
1
Total Baths
2
Other Rooms
Living/Great Room Dimensions: 17 x 13
Living/Great Rm Level
Main
Laundry Level
Lower
Utilities
Water Utility
City
Sewer
City
Additional Info
Garage Type
Detached
Garage/# of Cars
1.0
Fireplace
Yes
# of Fireplaces
1
Property SubType
Site-Built Home
Pool
No
Waterfront
No
Unbranded Virtual Tour
Calculate Your Monthly Payment
Simply fill out the information below and find out what your approximate monthly payment would be.
Monthly Payment |
$ |
|---|---|
| Loan | $ |
| Taxes | $ |
| Insurance | $ |
School Info
Elementary School
Nuner
Middle School
Jefferson
High School
Adams
Public Schools Nearby
| Name | Grades | Rating | Distance |
|---|
Private Schools Nearby
| Name | Grades | Rating | Distance |
|---|
Location
1503 Rockne Drive
South Bend,
IN
46617
Directions
Northeast Corner of Twyckenham and Rockne
IDX information is provided exclusively for consumers’ personal, non-commercial use and may not be used for any purpose other than to identify prospective properties consumers may be interested in purchasing. Data is deemed reliable but is not guaranteed accurate by the MLS. IDX information provided by the Indiana Regional MLS.
